805 Wage Dr SW
Leesburg, VA 20175

Scroll to Content

Images

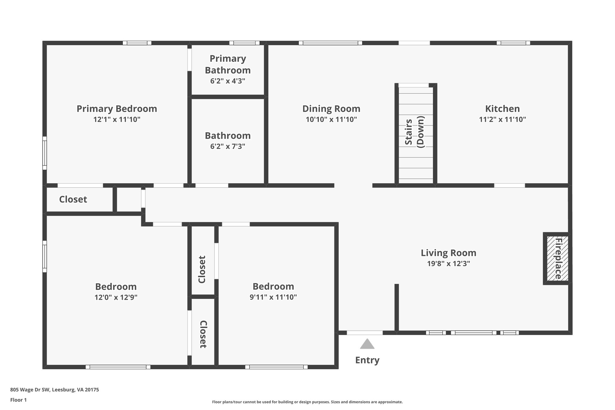
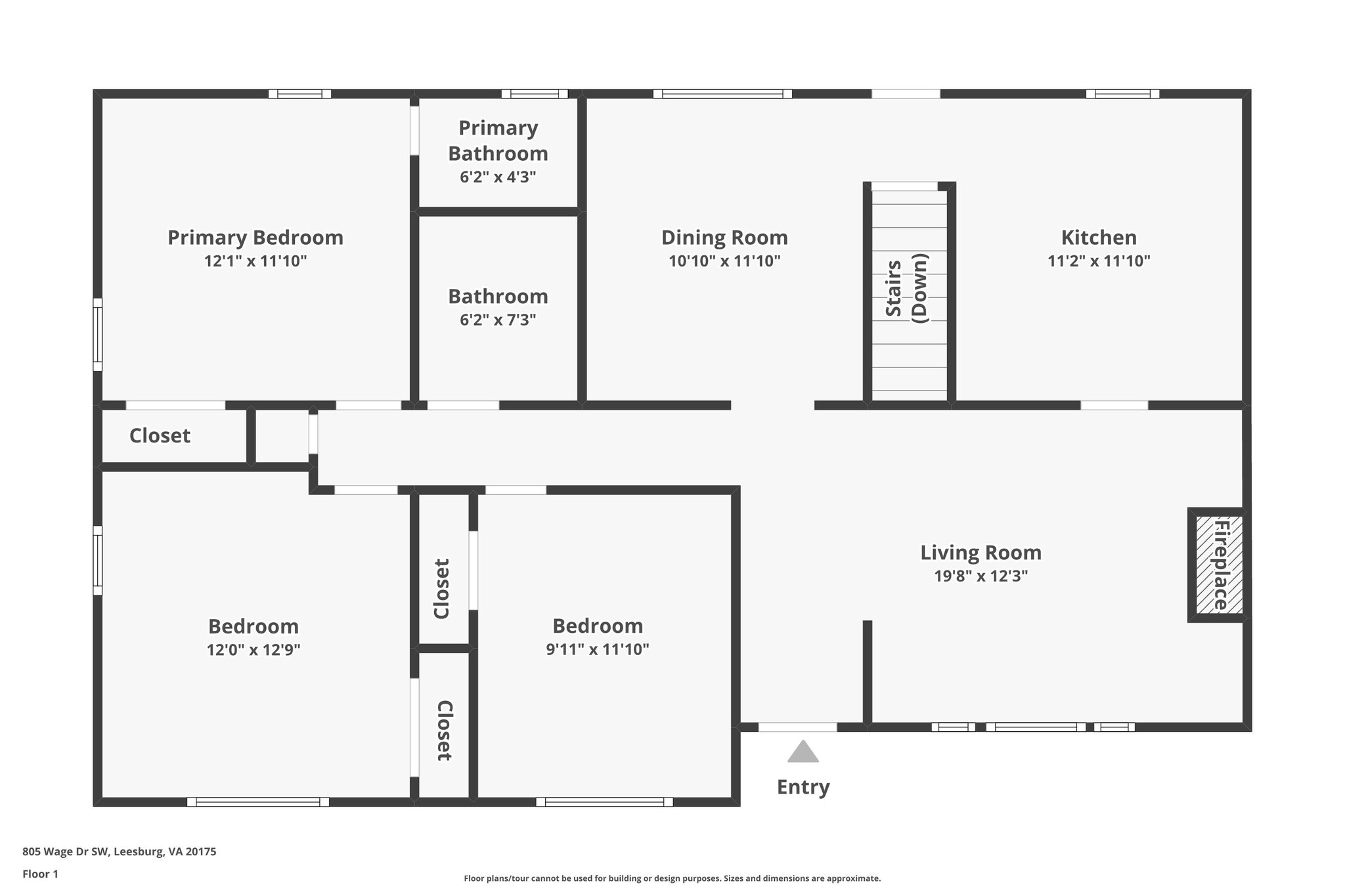
Floor Plans

3D Tour

Contact

Feel free to contact us for more details!